• Dear students, On behalf of VASU CONSTRUCTION'S AND BUILDER'S, We are excited to extend an offer to you for an internship position for ARCHITECTURE, CIVIL, INTERIOR DESIGNERS background. This position is located in Yelahanka New town, Bengaluru. This position is scheduled to begin 1 month , 3 months and 6 months , will be a paid internship opportunity, In this role, you will report directly to the company . This offer is contingent upon the successful completion role of Architects , civil Engineer, interior designer. You will get completion certificate for your college reference and for your future job as well, Please be sure to bring necessary documents with you on your first day to complete your profile, Ping your details in What's app no : +91 81519 08055

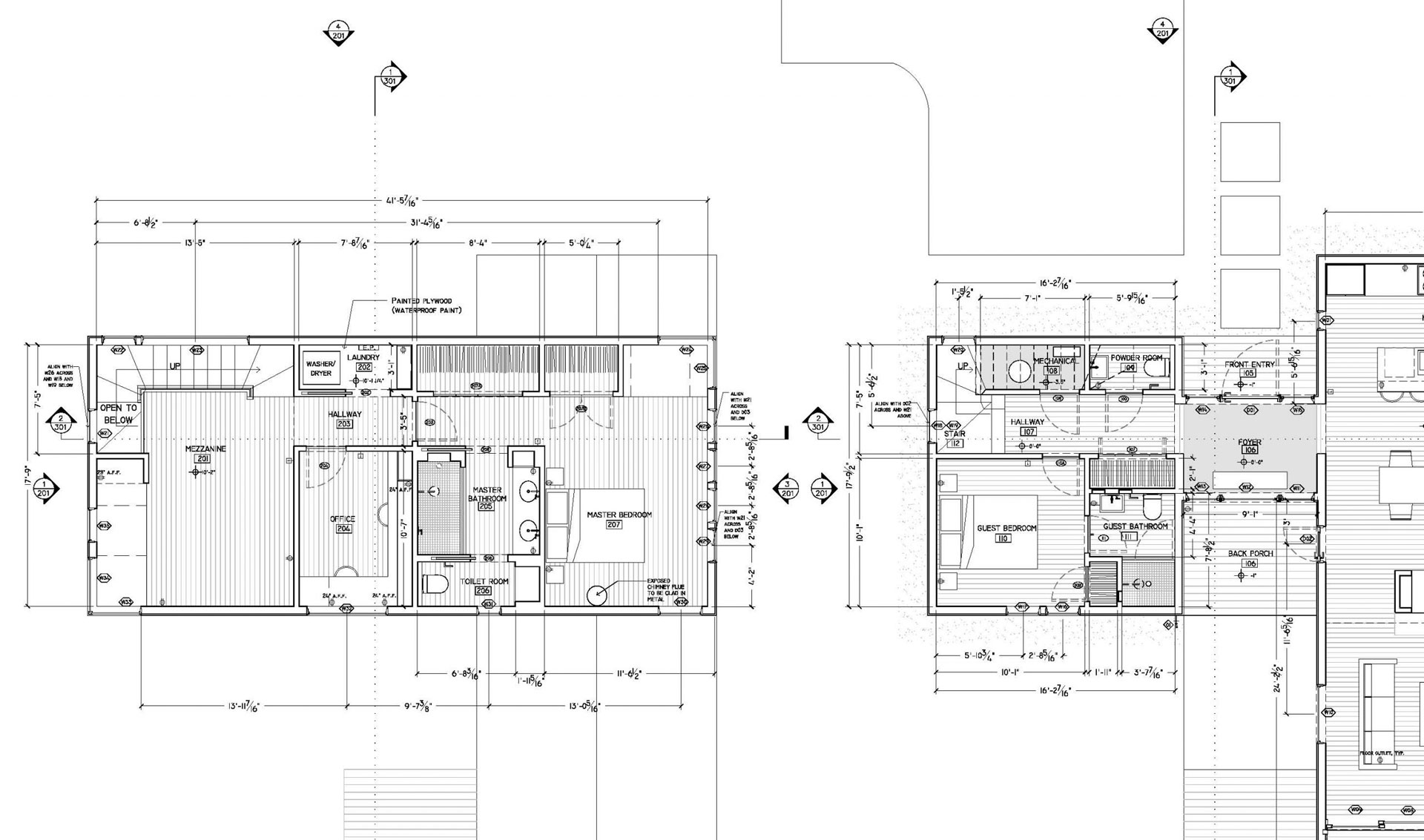
Structural Drawings

Structural Drawings

We provide exclusive structural design services for heavy and technically complex civil structures for individual house, villas, apartments, commercial buildings etc. As the frontiers of structural engineering advance, our rapidly accumulating resource of knowledge, experience and expertise equip us not only for refined conventional design but also, to investigate, develop and use designs beyond the boundaries of convention.

Our experienced structural designers, design and analyze the structure with the help of latest software. They provide the error free structure to our client. We would like to offer our technical services/consultancy at competitive/nominal rates. We assure our best services and look forward to our valued association with you.

whatapp chat